3489297528

Viale IV Novembre ,10/A Treviso (Veneto)

immobiliare.mica@gmail.com

Descrizione

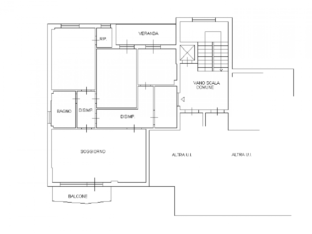
GRANDE e LUMINOSO Appartamento in Vendita a Riccione Centro a due passi da Viale Ceccarini Proponiamo in vendita a Riccione, un appartamento di circa 130 metri quadrati, situato al terzo piano di un condominio servito da ascensore, comodissimo e vicino a tutti i principali servizi. L'immobile, con facciata appena rifatta, offre la possibilità di essere completamente personalizzato con una ristrutturazione. L'ampia metratura consente un'ottimale riorganizzazione degli spazi per adattarli alle proprie esigenze. Caratteristiche dell'Appartamento Composizione Attuale: L'appartamento è composto da un ampio e luminoso salone con accesso al terrazzo, una cucina abitabile, una sala da pranzo e due camere da letto matrimoniali. Flessibilità: È possibile ricavare facilmente una terza camera e un secondo bagno, offrendo ulteriore spazio e comfort. Altri Spazi: L'immobile include una veranda con zona lavanderia oltre ad una comoda terrazza di generose dimensioni Accessori e Punti di Forza Pertinenze: La proprietà è completata da una cantina all'ultimo piano, un garage e un posto auto condominiale. Posizione: L'appartamento si trova in una zona centrale e ambita, ideale per chi desidera vivere nel cuore di Riccione. Opportunità: Rappresenta un'ottima opportunità di investimento per chi cerca un immobile spazioso, luminoso e da personalizzare secondo i propri gusti. N.B. Indirizzo indicativo per privacy. RIF: 030 MCT

Dettagli
  • Tipologia: Appartamento
  • Tipo contratto: Vendita
  • Città: Riccione
  • Indirizzo: Viale Damiani, 1 - Riccione (Emilia-Romagna)
  • Locali: 7
  • Bagni: 1
  • Camere: 2
  • Superficie: 130
  • Anno: 1965
  • Classe Energetica: 150
  • Riscaldamento: Autonomo
  • Stato Immobile: Buono
  • Giardino: -
Ambienti
  • Terrazzo
  • Box
  • Cantina
Caratteristiche
  • Aria condizionata
Planimetrie
Localizzazione

Scrivi la tua recensione

Voto