3489297528

Viale IV Novembre ,10/A Treviso (Veneto)

immobiliare.mica@gmail.com

Appartamento a Villorba Vendita

Descrizione

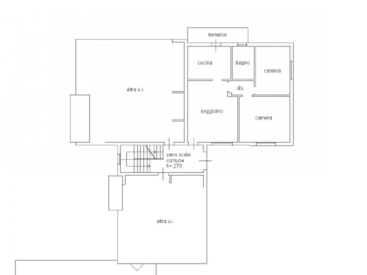
NOSTRA ESCLUSIVA Se stai cercando la combinazione perfetta tra la tranquillità della provincia e la comodità di avere Treviso a portata di mano, ho trovato l'appartamento che fa per te! Ti propongo in vendita un accogliente appartamento AL PIANO TERRA nella serena località di Catena di Villorba su Condominio con BONUS 110 appena fatto. Questa soluzione è pensata per chi desidera una vita luminosa e senza stress, con l'enorme vantaggio di avere spese di gestione davvero irrisorie. Varcando la soglia, sarai accolto dalla zona giorno: un soggiorno separato dalla cucina, che ti permette di tenere in ordine e organizzate le due aree. Dalla cucina, potrai accedere direttamente alla terrazza vivibile, uno spazio esterno comodo e perfetto per goderti un caffè al mattino o una cena all'aperto. La zona notte è ben disimpegnata: Troverai una camera matrimoniale spaziosa, ideale per il tuo riposo. La seconda camera è estremamente versatile, perfetta come stanza per i ragazzi, studio, o camera ospiti, e offre la possibilità di un piccolo ampliamento per adattarla al meglio alle tue esigenze. Il bagno, dotato di finestra e box doccia, completa la zona. Questo appartamento si distingue per i dettagli che semplificano la vita: Parcheggio Senza Pensieri: Oltre ad avere un garage di generose dimensioni, avrai a disposizione diversi posti auto sia all'interno che all'esterno della proprietà. Addio stress da parcheggio! Efficienza e Risparmio: Il riscaldamento è autonomo, permettendoti di gestire e controllare in piena indipendenza i consumi e, di conseguenza, le bollette. Contesto Ideale: L'immobile si trova in un piccolo e tranquillo condominio con pochissime unità, il che si traduce in spese condominiali estremamente basse. La vera forza di questo appartamento è la sua posizione assolutamente strategica: Se lavori a Treviso o ami il centro, sarai lì in pochissimi minuti di auto. Se sei un pendolare, la vicinanza immediata al Casello Autostradale Treviso Nord ti renderà gli spostamenti rapidissimi. Pur essendo in una zona tranquilla, tutti i servizi principali sono facilmente e velocemente raggiungibili. Questa è un'occasione unica per acquistare un appartamento a Lancenigo che aspetta solo di essere personalizzato da te, unendo relax e massima praticità! DISPONIBILE DA FINE APRILE 2026 N.B. L'indirizzo indicato nell'annuncio è puramente indicativo per motivi di privacy del proprietario. 042MCT

Dettagli
  • Tipologia: Appartamento
  • Tipo contratto: Vendita
  • Città: Villorba
  • Indirizzo: Via Giuseppe Verdi - Villorba (Veneto)
  • Locali: 3
  • Bagni: 1
  • Camere: 2
  • Superficie: 87
  • Anno: 1970
  • Classe Energetica: 350
  • Riscaldamento: Autonomo
  • Stato Immobile: Abitabile
  • Giardino: Comune
Ambienti
  • Terrazzo - Mq: 6
  • Giardino - Mq: 200
  • Box - Mq: 16
Caratteristiche
  • Aria condizionata
Planimetrie
Localizzazione

Scrivi la tua recensione

Voto