3489297528

Viale IV Novembre ,10/A Treviso (Veneto)

immobiliare.mica@gmail.com

Descrizione

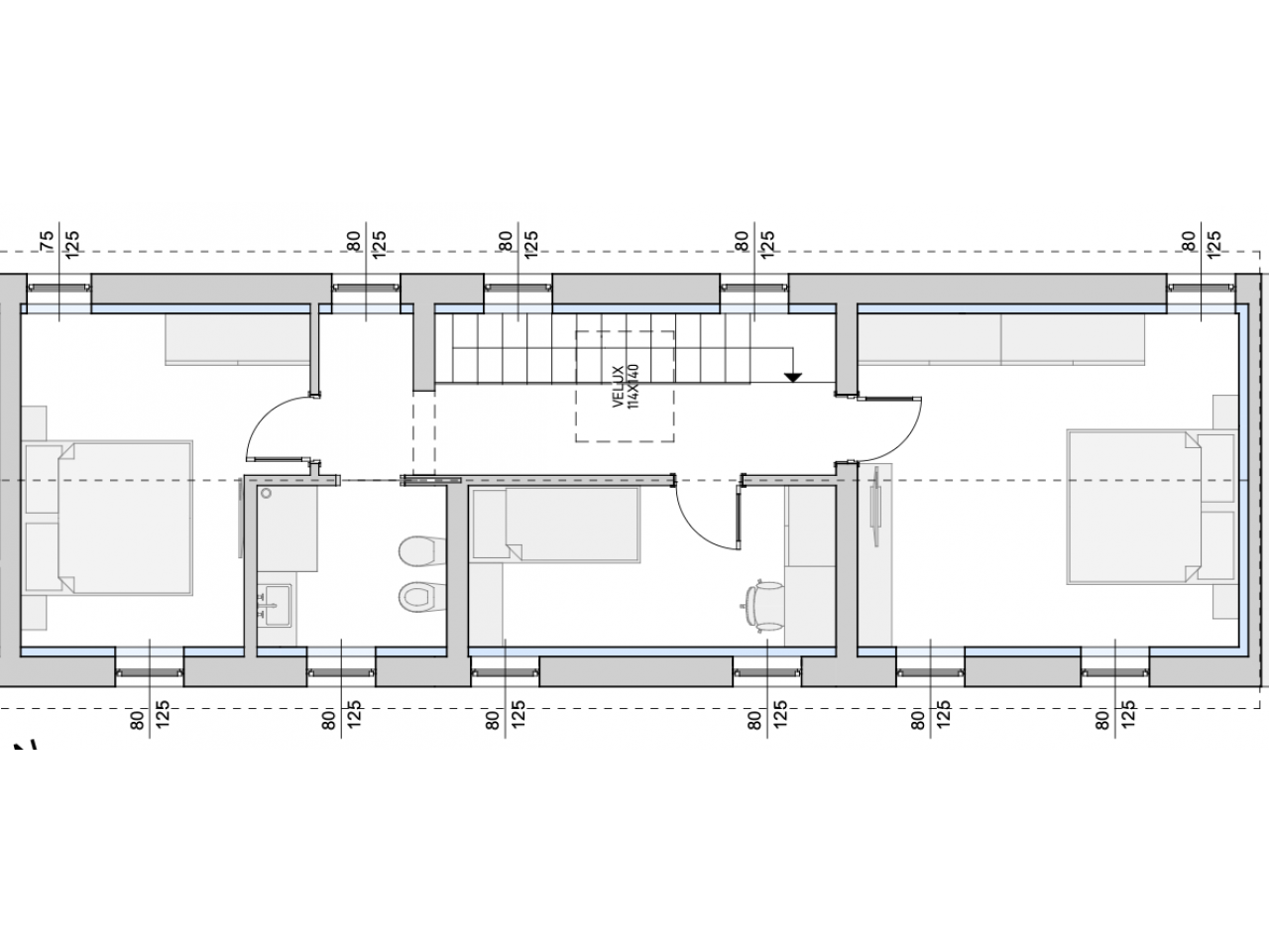
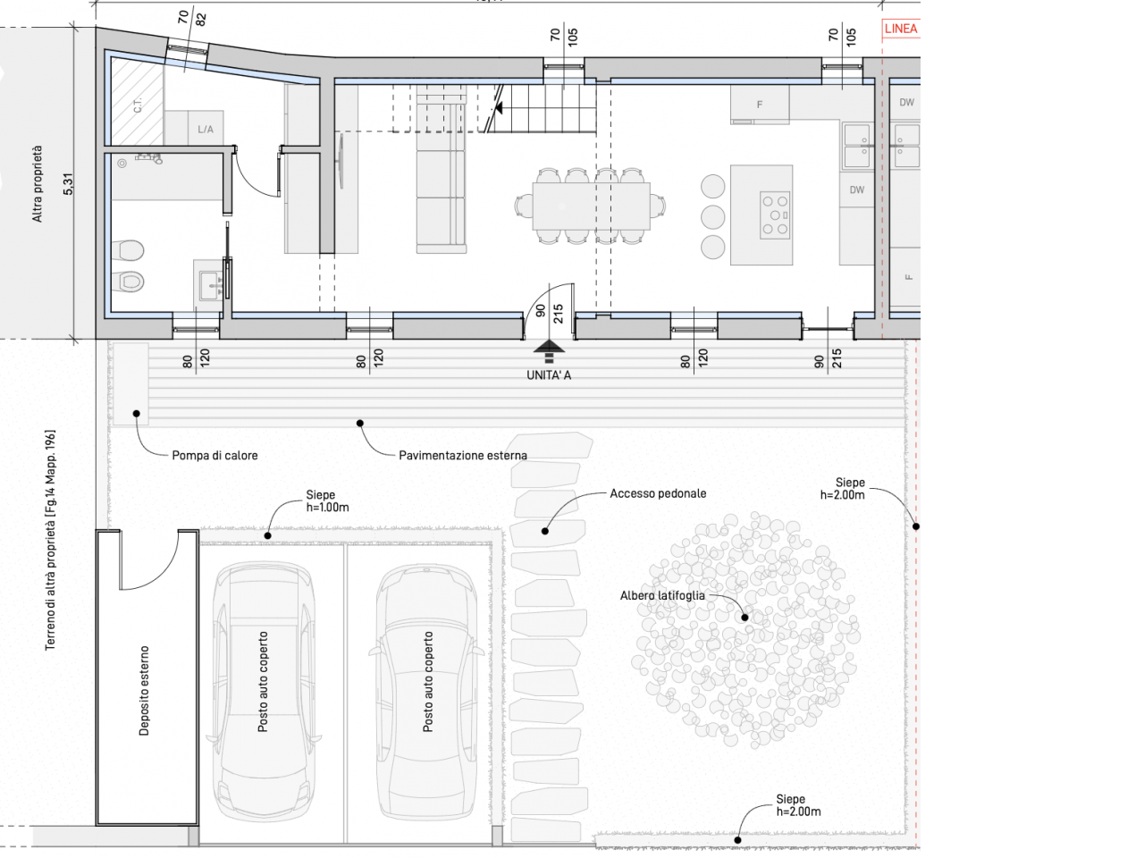
Porzione indipendente di nuova realizzazione con affaccio su Villa Margherita – Santa Maria del Rovere In uno dei contesti più raffinati e ricercati di Santa Maria del Rovere, con suggestivo affaccio sul parco di Villa Margherita, proponiamo una porzione indipendente di nuova costruzione, in consegna a PRIMAVERA 2026, pensata per chi desidera un’abitazione esclusiva, tecnologicamente evoluta e completamente personalizzabile. La proprietà nasce con standard costruttivi di alto livello ed è progettata per garantire massimo comfort abitativo, efficienza energetica e qualità dell’aria, con certificazione Classe Energetica A4. L’abitazione si sviluppa su due livelli e offre spazi ampi, luminosi e ben distribuiti. Al piano terra, la zona giorno si apre in un elegante open space di circa 40 mq, ideale per vivere e accogliere, con cucina a vista e grande flessibilità progettuale. Completa il livello uno studio riservato, perfetto per lo smart working o come ambiente multifunzionale, oltre a un bagno finestrato. Gli interni dialogano armoniosamente con l’esterno grazie a una area privata dedicata al relax, pensata per momenti di tranquillità e benessere. La zona notte, al piano superiore, è concepita come un ambiente intimo e raffinato: master bedroom con bagno privato, una camera doppia, una camera singola e un ulteriore bagno finestrato. La scala di design, illuminata naturalmente da velux, diventa un elemento architettonico distintivo. Dal punto di vista impiantistico e tecnologico, l’immobile è pensato per un’abitazione moderna e “smart”: - Pompa di calore per riscaldamento e raffrescamento a pavimento, con gestione da remoto - Impianto di umidificazione, deumidificazione e filtraggio dell’aria su tutti i piani - Ventilazione meccanica controllata in ogni ambiente - Cronotermostati digitali con controllo remoto - Predisposizione impianto antifurto/antintrusione - Predisposizione per piani cottura con cappa integrata o piani aspiranti, sia su isola che su cucina a muro Un valore aggiunto fondamentale è la possibilità di personalizzare le finiture interne, permettendo al futuro proprietario di scegliere materiali, colori e dettagli, realizzando una casa realmente su misura. Completano la proprietà un posto auto coperto e un magazzino esterno. La posizione, riservata ed elegante, consente di vivere immersi nel verde del parco, mantenendo al contempo la comodità dei principali servizi a breve distanza. Una soluzione ideale per chi è alla ricerca di una residenza indipendente nuova, efficiente, tecnologica e dal carattere distintivo, in una delle zone più apprezzate della città. Nota privacy: per espressa richiesta della proprietà, le immagini sono puramente illustrative; l’indirizzo indicato è da intendersi come riferimento alla zona e ai principali servizi e non costituisce vincolo contrattuale. Contattami per ricevere ulteriori informazioni e approfondimenti. RIF: 40SCT

Dettagli
  • Tipologia: Porzione
  • Tipo contratto: Vendita
  • Città: Treviso
  • Indirizzo: Via Cal di Breda, 19 - Treviso (Veneto)
  • Locali: 5
  • Bagni: 3
  • Camere: 3
  • Superficie: 120
  • Anno: 2026
  • Classe Energetica:
  • Riscaldamento: Autonomo
  • Stato Immobile: Nuovo
  • Giardino: Privato
Ambienti
  • Giardino - Mq: 100
  • Posti auto coperti
  • Posti auto scoperti
  • Deposito - Mq: 6
Caratteristiche
  • Aria condizionata
  • Predisposizione allarme
  • Antenna TV autonoma
  • Impianto elettrico a norma
Planimetrie
Localizzazione

Scrivi la tua recensione

Voto